
八尾市老原5丁目
【 新築 一戸建て 】【新築戸建】前面道路約6.3mですっきり住環境♫
| 最寄駅 | 所在地 | 面積 | 築年月 | 間取り |
|---|---|---|---|---|
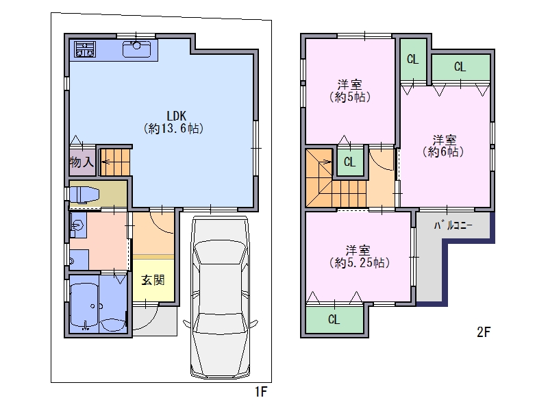
JR関西本線「八尾駅」 徒歩 14分 | 八尾市老原5丁目 | 土地/65.19㎡ 建物/71.02㎡ | 2022年05月 | 3 LDK |
■ 前面道路約6.3mで広々👆
■ 区画の整ったすっきりした住環境🌈
■ 両面空きに付き日当たり🌞通風良好🍃
■ バルコニーが広く用途色々😄
■ 周辺買物施設充実しております👜
物件写真・間取り
物件概要
| 物件名 | 八尾市老原5丁目 |
|---|
| 交通機関 | JR関西本線「八尾駅」 徒歩 14分 |
|---|
| 所在地 | 八尾市老原5丁目 |
|---|
| 間取り | 3 LDK |
|---|
| 土地権利 | 所有権 |
|---|
| 土地面積 | 65.19㎡ |
|---|
| 私道負担面積 | 無し |
|---|
| 建物面積 | 71.02㎡ |
|---|
| 建物構造 | 木造 |
|---|
| 階 / 階数 | 地上2階建 |
|---|
| 築年月 | 2022年05月 |
|---|
| 都市計画 | 市街化区域 |
|---|
| 用途地域 | 第一種住居地域 |
|---|
| 建ぺい率 | 60% |
|---|
| 容積率 | 200% |
|---|
| 駐車場 | 有 |
|---|
| 接道 |
|
|---|
| 地目 | 宅地 |
|---|
| 現況 | 未着工 |
|---|
| 引渡し | 期日指定 令和4年3月下旬 |
|---|
| 取引態様 | 媒介 |
|---|
| 情報登録日 | 2021年10月05日 |
|---|
| 情報更新日 | 2021年10月05日 |
|---|































