
朝日プラザシティ八尾南2番館
【 中古 マンション 】【中古マンション】高層階南向きに付き日当たり眺望良好♫
| 最寄駅 | 所在地 | 面積 | 築年月 | 間取り |
|---|---|---|---|---|
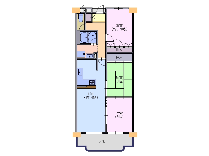
大阪メトロ谷町線「八尾南」 バス 12分 太田 | 八尾市沼1丁目 | 専有面積/71.63㎡ | 1990年02月 | 3 LDK |
物件写真・間取り
物件概要
| 物件名 | 朝日プラザシティ八尾南2番館 |
|---|
| 交通機関 | 大阪メトロ谷町線「八尾南」 バス 12分 太田 |
|---|
| 所在地 | 八尾市沼1丁目 |
|---|
| 間取り | 3 LDK |
|---|
| 土地権利 | 所有権 |
|---|
| 専有面積 | 71.63㎡ |
|---|
| 建物構造 | SRC |
|---|
| 階 / 階数 | 10階/地上13階建 |
|---|
| バルコニー面積 | 10.89㎡ |
|---|
| バルコニー | 南側 |
|---|
| 築年月 | 1990年02月 |
|---|
| 都市計画 | 市街化区域 |
|---|
| 用途地域 | 第一種住居地域 |
|---|
| 建ぺい率 | 60% |
|---|
| 容積率 | 200% |
|---|
| 駐車場 | 空無 |
|---|
| 地目 | 宅地 |
|---|
| 現況 | 空 |
|---|
| 管理費 | 2860円 |
|---|
| 修繕積立金 | 13250円 |
|---|
| 管理形態 | 全部委託 |
|---|
| 管理会社 | 近鉄住宅管理 |
|---|
| 引渡し | 即時 |
|---|
| 取引態様 | 媒介 |
|---|
| 情報登録日 | 2021年08月29日 |
|---|
| 情報更新日 | 2021年08月29日 |
|---|































