
八尾市久宝園2丁目
【 中古 一戸建て 】【中古戸建・工場】土地約170坪 倉庫部分クレーン有♫
| 最寄駅 | 所在地 | 面積 | 築年月 | 価格 |
|---|---|---|---|---|
近鉄大阪線「弥刀駅」 徒歩 8分 | 八尾市久宝園2丁目 | 土地/563.98㎡ 建物/235.52㎡ | 1970年12月 | 9,800 万円 |
■ 近鉄大阪線「弥刀駅」徒歩約8分 「久宝寺口」徒歩約9分🚋
■ 土地約170坪🏠
■ 南側通路につき、陽当り通風良好👆
■ 居宅部分浴室等リフォーム履歴有✨
■ 居宅部分太陽光発電有🌞
■ 倉庫部分クレーン有✨
■ 倉庫部分電動シャッター有👈
■ 美園小学校・久宝寺中学校区🏫
物件写真・間取り
物件概要
| 物件名 | 八尾市久宝園2丁目 |
|---|
| 交通機関 | 近鉄大阪線「弥刀駅」 徒歩 8分 近鉄大阪線「久宝寺口駅」 徒歩 9分 |
|---|
| 所在地 | 八尾市久宝園2丁目 |
|---|
| 価格 | 9,800 万円 |
|---|
| 土地権利 | 所有権 |
|---|
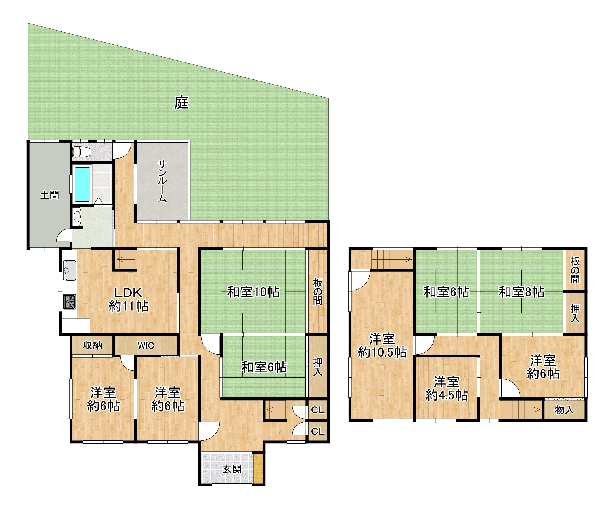
| 土地面積 | 563.98㎡ |
|---|
| 私道負担面積 | 無し |
|---|
| 建物面積 | 235.52㎡ |
|---|
| 建物構造 | 木造 |
|---|
| バルコニー | 南側 |
|---|
| 築年月 | 1970年12月 |
|---|
| 都市計画 | 市街化区域 |
|---|
| 用途地域 | 第一種住居地域 |
|---|
| 建ぺい率 | 60% |
|---|
| 容積率 | 200% |
|---|
| 駐車場 | 有 |
|---|
| 接道 |
|
|---|
| 地目 | 田 |
|---|
| 現況 | 居住中 |
|---|
| 引渡し | 相談 |
|---|
| 備考 | 上記他建物有 ①種類:物置 構造:木造瓦葺平屋建 床面積:12㎡ ②種類:倉庫・作業場 構造:鉄骨造スレート葺2階建 築年数:H3年7月築 床面積:1階142.74㎡ 2階142.74㎡ ※南側道路は建築基準法上の道路扱い無し |
|---|
| 取引態様 | 一般 |
|---|
| 情報登録日 | 2026年03月23日 |
|---|
| 情報更新日 | 2026年03月23日 |
|---|


























































