
八尾市桂町6丁目
【 一戸建て 】【貸工場】3棟セット貸し リフト有り♫
| 最寄駅 | 所在地 | 賃料 管理費等 | 敷金 礼金 |
|---|---|---|---|
近鉄大阪線「河内山本駅」 徒歩 24分 | 八尾市桂町6丁目 | 990,000 円 | 2970000 1980000 |
■ 3棟セット貸し✨
■ リフト有り👈
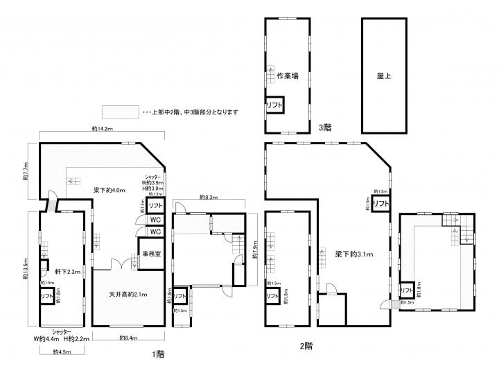
物件写真・間取り
物件概要
| 物件名 | 八尾市桂町6丁目 |
|---|
| 交通機関 | 近鉄大阪線「河内山本駅」 徒歩 24分 |
|---|
| 建物構造 | 鉄骨造 |
|---|
| 主要採光面 | 南側 |
|---|
| 駐車場 | 有 |
|---|
| 引渡 | 相談 |
|---|
| 備考 | ・用途地域:第二種中高層住居専用地域 |
|---|
| 情報登録日 | 2025年07月20日 |
|---|
| 情報更新日 | 2024年04月20日 |
|---|






































































